
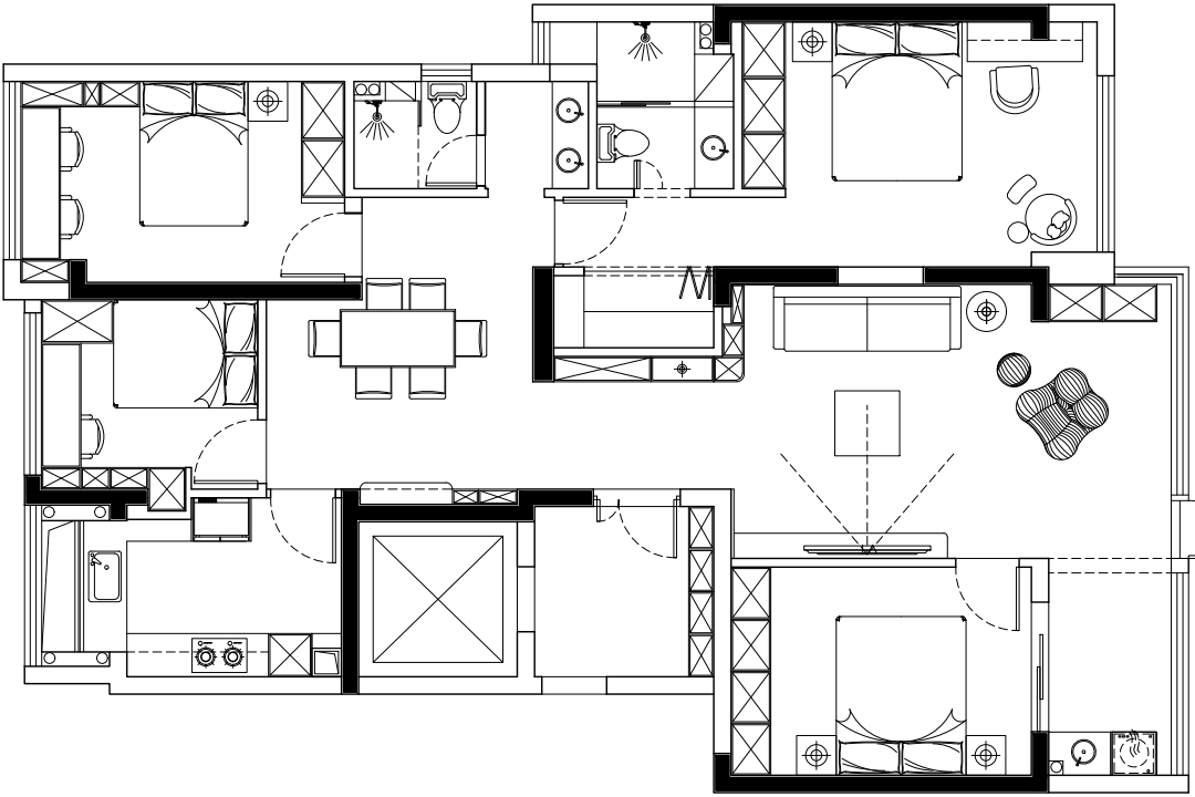
▲平面设计图
开放式的格局,黑白灰的理性调性,从容掌控着空间的节奏。明亮通透而不失互动感,在自由与共处之间,找到了家的最佳平衡。

玄关柜自然衔接客厅的满墙收纳柜,转角处圆弧形处理,于简约中注入一丝温润的人文关怀。

无痕隐形门巧妙融入电视背景墙面,保持整体感。
浅色地面提升明亮度,嵌入式射灯与灯带共同营造均匀柔和的光线。空间通透流畅,延伸至餐厅与走廊,视野开阔而富有纵深感。

黑色线性灯带、出风口、柜体嵌入色块、深色柜体,乃至沙发,共同构成了空间深色的骨架,与大面积的白形成清晰、利落而高级的对比,仿佛一幅精致的单色素描。
渐变单人沙发,以织物质感与色彩柔化了空间的冷感,在不经意间注入一抹慵懒,传递出从容而优雅的现代意式情调。

阳台以优雅的拱形造型吊顶,串联起客厅与卧室的动线,巧妙弱化了结构棱角,赋予过渡空间以柔和的艺术感。
洗烘设备嵌入定制柜体,智能晾衣架收于顶层,功能隐于简洁的立面之后,诠释藏秀于内的实用美学。

超大落地窗与全景玻璃门将自然光与景致最大化引入,使这里成为家中最明亮的呼吸点。

黑白灰基调营造出沉稳氛围,无把手白色到顶衣柜与深色悬浮书桌,简洁实用。
床头背景墙以浅色板材、岩板画、黑色格栅拼接,嵌入暖光灯带,烘托出温馨感。

白色到顶衣柜,黑色线条与深色嵌入区域增添设计感。


次卧则更多的是功能属性,浅蓝墙面与木质元素点睛,自然光线透过大窗洒入,窗外绿意成为动态背景。

一体化木质台面兼具飘窗与工作区功能,连接定制柜体,开放架与封闭柜门结合,满足多样化收纳场景。

百叶窗间筛落缕缕光斑,更含蓄也更直白。当自然痕迹与现代工艺悄然相遇,便成就了这一片朦胧浅眠的温柔时光。
于简约中蕴藏丰盈,让舒适与美感在空间内达成自洽,将关于生活的理想逐一兑现。这,正是现代意式美学的内在腔调,一种根植于生活的高级。

餐厅区域以木色、暖白与冷白的调和,延展出舒缓而富有节奏的视觉叙事。
岩板餐桌搭配黑色皮质餐椅,轮廓简洁优雅,理石肌理与木饰面的柔和质感,在对比中丰富空间层次。

已有29人获取报价服务