
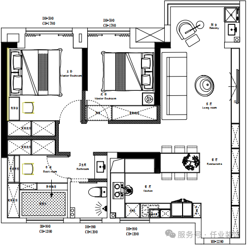
▲平面设计图
当每一处设计都暗藏巧思,当光与暖自然流淌于日常,一个理想的家,就跃然呈现在眼前。温暖的气息与木质肌理完美相融,以柔和的色调勾勒出宁静的意境,营造出令人放松的惬意空间。

开放式布局的客厅,一道弧形垭口过渡到阳台,既塑造出了空间的通透感,又弱化了直角带来的生硬感,顶部隐藏中央空调出风口,视觉清爽无负担。
阳台的纱帘过滤强光却不阻清风,角落放置的绿植,用鲜活的生命力,为室内增添了几许春日气息~

摒弃传统厚重柜体,选择了悬浮电视柜+嵌入式灯带,下方预留一定高度,居家清洁无障碍。

奶油色调与原木材质,奠定了温暖的基调,绒面沙发触感柔软,搭配黑白绒面地毯和盖毯,可移动的小茶几放置面前,于此度过闲暇时光,惬意又愉悦。

卧室定制白色全墙衣柜,与小面积木色搭配,延伸了视觉空间。
衣物收纳区与展示区一应俱全,镂空区域弧形设计元素,加上床头灯带暖光点缀,温馨氛围满格。

床头背景板暗藏线性灯带,夜间开启温柔不刺眼。从衣柜延伸出悬浮书桌兼床头柜,嵌入开放格,小物件触手可及,无桌腿的设计,清除卫生死角~

进门处设置悬浮玄关柜,木色开放格与暖光灯带的组合,让晚归时亮起的柔柔微光,成为最具象的温柔。
与玄关柜相连,间隔长虹玻璃门柜体,整墙的米白色储物柜,无把手设计更显整洁,居中开放式外置柜,收纳钥匙、雨伞等小物件方便又省事。


餐厅以柔和的奶油色调为主色调,简约不张扬,原木餐桌椅造型简洁,岩板台面耐高温、抗污渍,营造出素雅的用餐空间。
已有29人获取报价服务