案例详解
△ 锦绣香江·300㎡



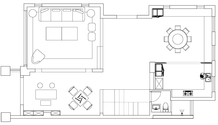
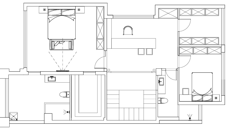
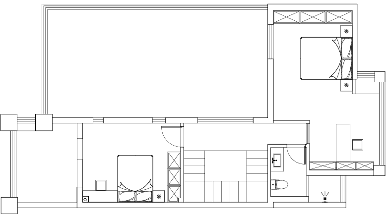
▲平面设计图
简化传统中式的繁复,以书画为灵感,将其复刻到空间设计中,绿意入室空间向外扩展,光影转换间,一步一景开启中式美学篇章。
步入室内,井然有序的布局和现代生活的秩序感不谋而合,家具的色彩完美的呼应着高山流水的诗意,镌刻了此处的唯美意境。

茶室是这个禅意之居的核心,其中巧妙融入国学元素,实木茶桌与楼阁描金背景墙形成一个圈层交流、品位交融的空间。居住者在这里仿佛沉浸在禅意的氛围中,享受层次分明的设计,感受到东方文化的深邃韵味。

餐厅和客厅采用一体化设计,开阔的感觉,来自于共享活动空间,通透感十足。
奢华从眼入心,结合日常的舒适体验,整体氛围迷人又惬意。中式美学艺术包裹身心,绿植的加入带来自然清新感觉。艺术品默默散发东方艺术气息。

绿植端景带来了自然的气息,温润室内的品质,立体山峦背景墙内设隐藏灯带,设计师通过线条的细腻处理,解构山水的灵性,使山的起伏宛如水波摇曳,创造出抽象化的东方山水。
主卧细节中契入山水画的符号,展现出东方的隽雅之美。金棕色主调透露着自由的雅意,书墨装饰则增添了空间的东方律动感。

悠扬的中式风格给人以轻松惬意之感,暖色的背景奠定了更多的温暖,金色描漆定制柜,描绘着此处的雅致,起伏的背景板藏匿着动态之美,呼应着多元的设计理念。

儿童房延续雅灰格调,简约的笔触串联起自然与人文的记忆。通过有趣的羊驼摆件与兔耳壁灯打造成一个充满想象力的乐园,一改东方哲学之美,给孩子不一样的童趣空间。


在这个新中式的空间中,设计师综合考虑到了业主的生活与会客状态,以线条赋予空间规整,以中性色赋予空间包容,让更多的爱好得以在室内展现,让更多的活力得以融入生活。
已有30人获取报价服务