
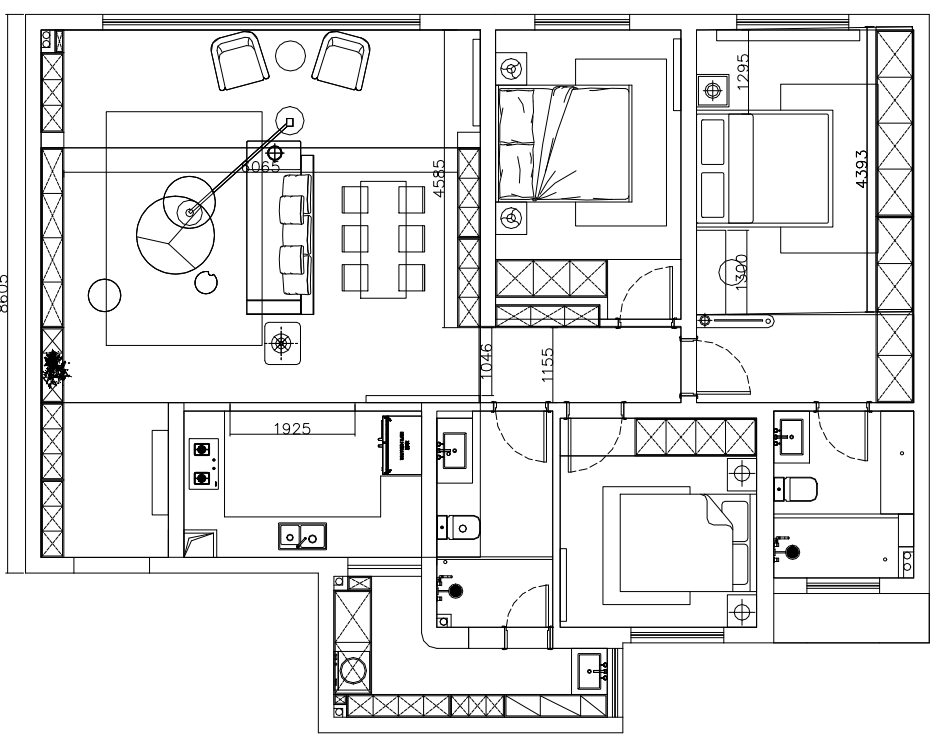
▲平面设计图
功能与生活美学共融,"极简"不再只是风格的标签,而是重构当代生活的方式,悬浮手法、隐藏灯光、温润木质,光影材质营造静谧居室。



客餐一体的设计,打破了传统空间的界限,让客厅与餐厅自然衔接,形成一个连贯的公共区域。

门与床之间的长虹玻璃隔断,是主卧的一大亮点,玻璃呈现的朦胧质感,既保证空间私密性,又能让光线柔和穿透,增添一份浪漫温馨。

衣柜右侧开辟一方绿植区,生机勃勃,增添自然色彩,大面积窗户,引入充足光线,与绿意共同营造放松惬意之所~


在这里,每个细节都经过精心考量,既满足了实用需求,又展现了极简风格的独特魅力。
这样的家,不仅仅是居住的空间,更是一种生活态度的体现,当繁华与喧嚣渐次退去,在简素中,感受生活的本质与幸福的真谛。

餐厅岛台以水墨为背景,与玄关端景区呼应,形成整体设计语言。
厨房的透明滑轨门既保持了厨房的封闭性,避免油烟扩散,又让厨房与餐厅、客厅之间保持了视觉上的连通。
已有29人获取报价服务