

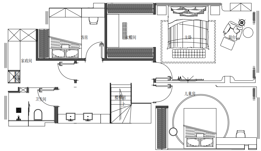
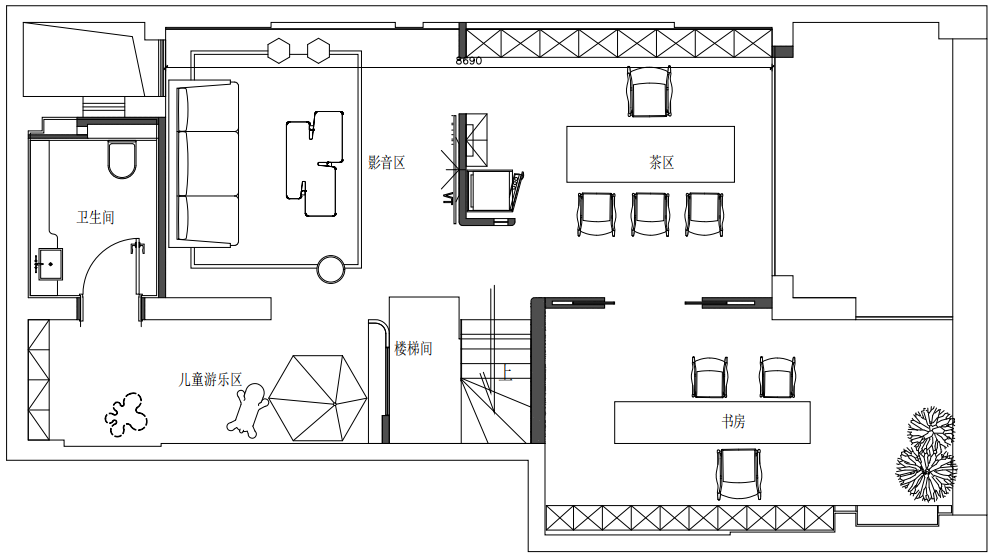
▲平面设计图

客厅没有做过度的陈设,深胡桃色大面积铺陈,搭配浅木色地板,奠定了深邃高级的基调。
悬浮式电视墙内嵌线性灯带,勾勒居室氛围,开放式空间设计,与饱和度低的家居颜色相互辉映,精炼线条与同色块面碰撞,以简约的姿态,演绎着生活的诗与远方。

每一处细节都经过精心雕琢,从暖色调布艺沙发座椅,到水墨大理石岩板茶几,无不彰显着主人对品质生活的追求。
精致的摆件和绿植点缀其中,为室内增添一抹灵动与生机。


主卧大面窗,光影自然,无所拘束,拥抱室外美景。收纳功能交给衣帽柜与展示柜,无主灯氛围营造与梳妆台内嵌灯带,生活起居变得更加方便。
阳台休息区形成视觉与功能上的双重互动,营造出更纯粹的休憩空间。


已有29人获取报价服务